For more information on our Valentina Estates development project, you may reach out to us.
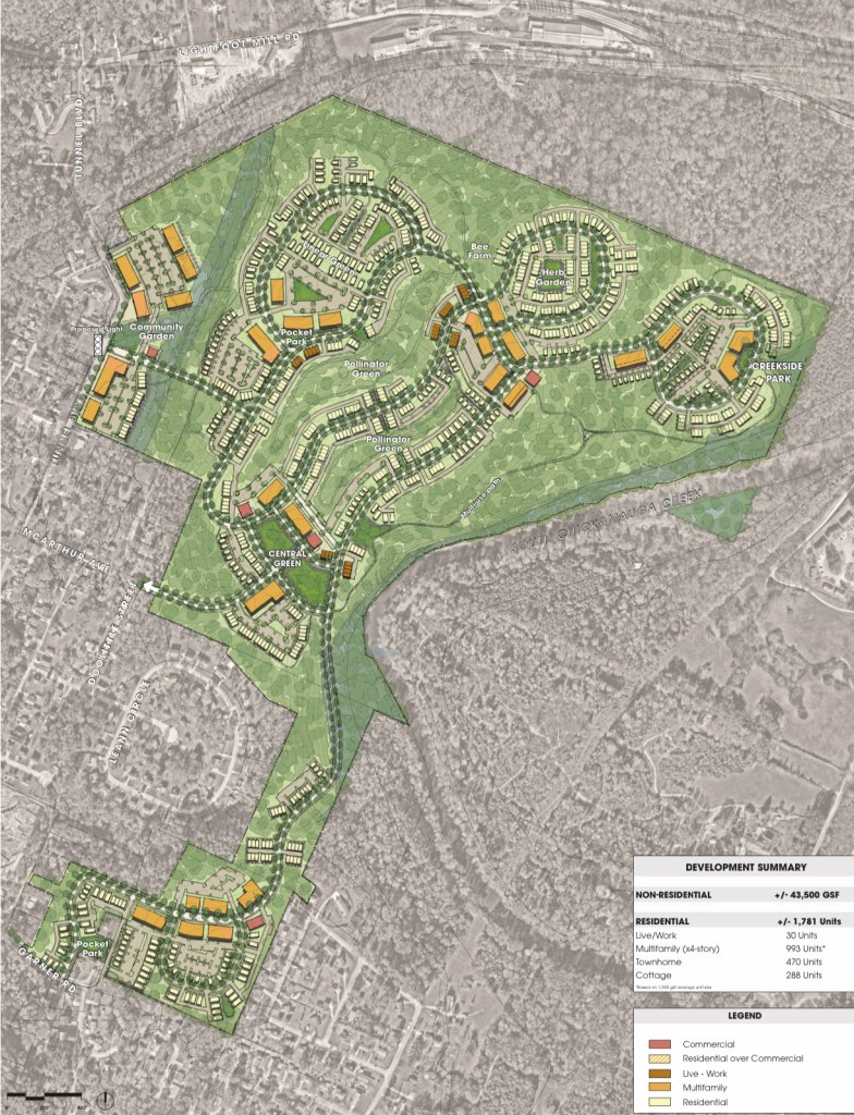
Just behind our planned Valentina Estates development, we have recently acquired an 18-acre plot of land with the intention of developing a community showcasing seventy (70) single-family homes.
Rashad Jones-Jennings, also known as “Shadzilla,” was born and raised in a small town in Chattanooga, Tennessee. From a young age, he learned about the harsh realities of life, gaining a firsthand understanding of the longstanding socio-economic disparities that his community grapples with. From a tender age, he observed how the absence of homeownership opportunities, quality education, and job prospects made a significant impact on his community.
Regardless of his circumstances, Rashad was determined to write a different narrative for his life. He excelled academically and received an academic scholarship. And then through basketball, he then received a sports scholarship. With his unrelenting passion for sports, he made a name in the world of professional basketball. Over the course of eight years, he played for a host of teams throughout Europe, South America, and Asia. In 2015, he made the unexpected decision to retire from basketball due to injury; however, his journey to success was still far from over.

In preparation for his transition to real estate, he immersed himself in real estate books and equipped himself with the knowledge needed to succeed in the industry. With his perseverance, he obtained licenses as a real estate agent in both Georgia and Tennessee and eventually obtained his broker’s license. Fulfilling his lifelong dream of becoming a Real Estate Developer, he decided to shift his focus toward developing communities.
Today, Rashad serves as the Chairman & CEO at Post Pro Capital. Leveraging his expertise in acquisitions, management, and structuring multi-million dollar developments, he aims to bring Post Pro Capital to new heights.
Despite his numerous endeavors, he remains deeply rooted in his hometown. Through Post Pro Capital, he aims to revitalize neighborhoods in and around Chattanooga, and he aims to inspire and motivate the young people in his hometown to pursue a career in real estate.
May Rashad’s story serve as a reminder that through hard work and perseverance, with a strong foundation of knowledge, and combined with the right opportunities, and with all these elements aligned, anyone has the potential to succeed in life.